Külm- ja sügavkülmkambrid
Kagukliima OÜ pakub oma klientidele väga kvaliteetseid külmkambreid, mis koosnevad kvaliteetsetest materjalidest, külmaagregaadist ja paigaldustööst.
Külmkambrite ehitamine on meie igapäevane töö ja seda teeme suure professionaalsusega.
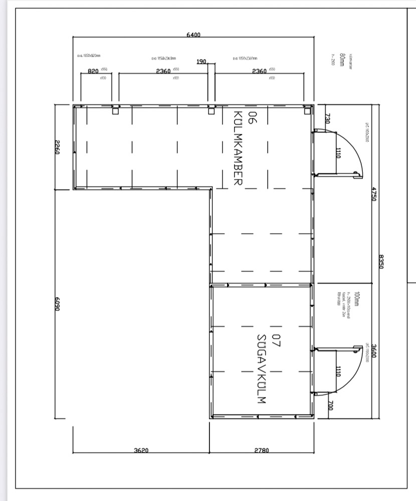
Külmkamber projekteeritakse ja valmistatakse vastavalt kliendi soovidele.
Külmkamber monteeritakse kvaliteetsest polüuretaan isolatsiooniga loodussõbralikest ja energiat säästvatest moodul-elementidest paksusega 60, 80, 100, 120 mm. Lihtne ja kindel haakeühendus. Paneelid toodetakse vastavalt kliendi ruumi mõõtudele. Paneelide standard värvus on valge, eritellimusel võime valmistada ka külmkambri paneelid roostevaba kattega
PANEEL
Külmkamber monteeritakse kvaliteetsest polüuretaanisolatsiooniga loodussõbralikest ja energiat säästvatest moodul-elementidest paksusega 60, 80, 100, 120 mm.
Lihtne ja kindel haakeühendus. Paneelid toodetakse vastavalt kliendi ruumi mõõtudele. Paneelide standard värvus on valge, eritellimusel võime valmistada ka külmkambri paneelid roostevaba kattega.
Sandwichpaneelide soojusjuhtivus.
60 mm λ=22,9 mW/m*K
80 mm λ=22,7 mW/m*K
100 mm λ=23,0 mW/m*K
120 mm λ=23,2 mW/m*K
Küsi pakkumist
RIIULID
Külmkambritesse pakume 3 tüüpi riiuleid: seinale kinnituvad ja reguleeritavad, põranda riiulid ja plastikriiuleid. Riiuli mõõdud arvestame vastavalt kambri sisemõõtutele. Standard sügavus riiulitel on 400 mm ja standard tasapindade arv on 4 tasapinda.
riiuliplaadid on tehtud roostevabast terasest
plaatide kõrguse reguleerimise samm on 45 mm
plaadi standard sügavus on 410 mm
plaadi kandevõime kuni 70 kg /jm
Küsi pakkumist
UKSED
Pakume hingedel uksi, pendeluksi, kahepoolseid uksi, lükanduksi, plastikkardinaid.
Sügavkülmkambrite uksepiidad on varustatud küttekaabliga. Uksed on komplekteeritud











